【1日1組限定 一棟貸し】るうふ 揺之家
四季折々の風景が織りなす
アートを楽しむ宿
Experience 体験
風の抜ける広々とした和室から
眺めることのできる四季折々の風景は
まるで絵画。
庭と室内でのアートを楽しめる
「Active Art Hotel」で
癒しの体験を。
-
庭園アート体験
Art 1
お部屋からの庭園の眺望は四季折々の風景を楽しめる特別な空間となっています。 -
絵画アート体験
Art 2
佐渡を代表する版画作家「高橋信一」のトキや鬼太鼓モチーフの絵画をお楽しみいただけます。 -
骨董アート体験
Art 3
装飾が美しい帯や掛け軸をアートとしてお楽しみいただけます。
Space空間

古民家の良さを残した空間で
庭と室内でのアートを
五感で楽しむ
お部屋についてRoom
定員:8名
※シングルのお布団が8セットご用意可能です。

-
Fasade

-
Living room 1

-
Dining room

-
Bed room 1

-
Bed room 2

-
Art room 2

-
Kitchen

-
Toilet

-
Bath room

AKIYATO Active Art Hotelでの
過ごし方Time Line









Day 01 Day 01 Day 01 Day 01 Day 01 Day 01 Day 02 Day 02 Day 02 15:00 16:00 19:00 20:00 21:00 23:00 7:00 8:00 9:00
テーブルを囲んで
目覚める
扉を開けた瞬間に包まれる木の香りで旅の疲れを癒す。
広々とした空間で旅の疲れを癒す。
緑に癒されながら日々の疲れをリフレッシュ。
冬季は牡蠣もご賞味いただけます。(要予約)
室内のアートを眺めながら
旅路の計画を。
庭園ライトアップを眺めた後は
満点の天体観測を。
朝陽の差し込むお部屋で
1日の始まりを感じる。
豊かな風景を感じながら
旅立ちの準備を。
玄関の2人に
いってきますと伝えて。
15:00
16:00
19:00
20:00
21:00
23:00
7:00
8:00
9:00
宿泊プランについてPlan
ドリンクDrink
アクセスAccess
新潟県佐渡市潟端896
お車でお越しの方
佐渡汽船 両津港 ターミナルから車で約12分。
・専用駐車場3台まで(建物敷地内に駐車場あり)
電車・バスでお越しの方
横宿線
バス停 『水渡田』より 徒歩30分
バス詳細は新潟交通佐渡株式会社ホームページをご確認ください。
https://www.sado-bus.com/route/yokojuku/
宿の概要Facility
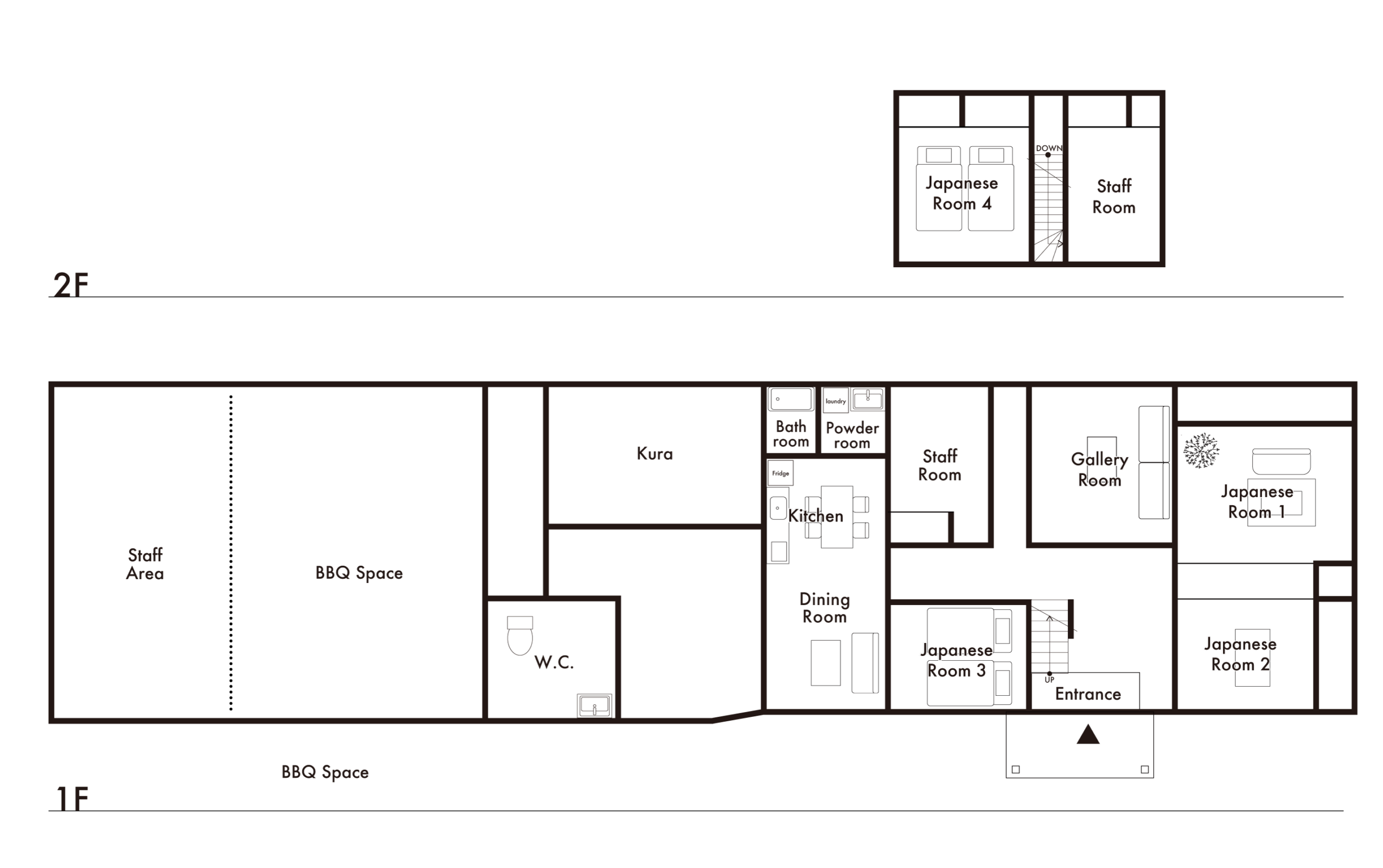
施設全容Plan
キッチンKitchen
- 調理器具
炊飯器、冷蔵庫、電子レンジ、まな板、包丁、おたま、フライパン、鍋、お皿、コップ、箸、箸置き、カトラリー、ワインオープナー、アルミホイル、ラップ、ケトル
- 調味料
塩、醤油、油
- 飲み物
なし
お風呂Bath
- 設備
バスタブ、シャワー
- アメニティ
バスタオル、フェイスタオル、ハンドタオル、ドライヤー、歯ブラシ・歯磨き粉、くし、コットン、綿棒、スリッパ、ヘアゴム、カミソリ
- 洗面・バス用品
シャンプー、コンディショナー、ボディーソープ、クレンジングオイル、洗顔、乳液、化粧水
その他Other
- チェックイン・アウト
チェックイン時間:15時〜20時
チェックアウト時間:10時
※セルフチェックインシステムとなります。詳細なチェックイン方法はご予約後にご連絡いたします。
※チェックイン前に宿泊者様全員分の情報を入力いただきますのでご了承ください。
- キャンセル料金
- 30日前 宿泊料金の100%
- 当日 宿泊料金の100%
- 無連絡キャンセル. 宿泊料金の100%
※キャンセルされる場合はなるべく早くご連絡下さい。


